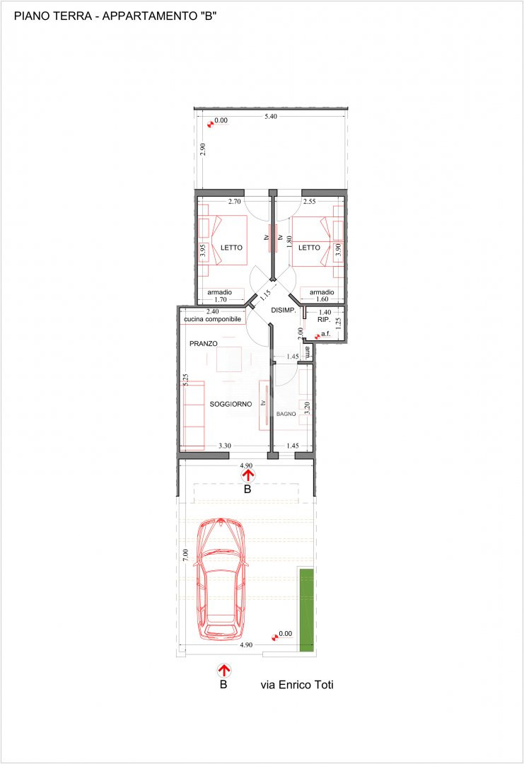
NUOVO COMPLESSO RESIDENZIALE
In vendita, in Via Toti, elegante complesso di nuova costruzione, situato a soli 177 metri dal mare. L’intervento prevede la realizzazione di cinque unità abitative, distribuite in tre appartamenti al piano terra e due al primo piano, ciascuno con posto auto riservato. Gli ampi spazi esterni, sia sul fronte che sul retro, sono progettati per offrire zone living all’aperto ideali per momenti di relax e comfort. La consegna degli immobili è prevista per l’anno 2027.
-
Rif. incarico:
1750-2
-
Sup. commerciale:
ca. 0 mq
-
Stato imm.:
N/D
-
Anno costr./ristr.:
2026
-
Piani edificio:
N/D
-
Classe energetica:
A
-
EPI:
32.5 kWh/m3 anno